Lot 165 – The Kerri

Wilmington, NC


Price
$TBD

Square Feet
2547-3154

Bed
4

Bath
3.5

Garages
2


Neighborhood: Waterstone

Home Plan: The Kerri

Status: Under Construction

Buyer Agent Compensation: 2.5%


Description

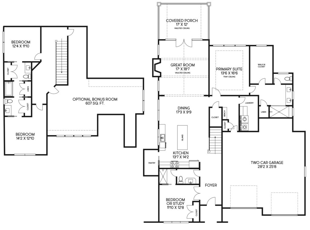
The open-concept great room, dining area, and gourmet kitchen create the perfect space for both everyday life and entertaining, all centered around effortless flow and natural light. The main-level primary suite offers a peaceful retreat with a spacious walk-in closet and spa-like bath, while additional bedrooms and an optional bonus room provide endless versatility for guests, hobbies, or a home office. With a covered porch for outdoor relaxation and thoughtful details throughout, the Kerri Plan delivers comfort, style, and room to grow.

Floor Plan

Schedule a Home Tour

Want to see this home in person? Send us your information below along with the date that you would like to visit, and we will be in contact to schedule a time with you.

"*" indicates required fields

This field is for validation purposes and should be left unchanged.
MM slash DD slash YYYY
This site is protected by reCAPTCHA and the Google Privacy Policy and Terms of Service apply.