Waterford Lot 23

Home Plan


Sq. Ft. Range
3259

Bed
4

Bath
3.5

Garages
2


Description

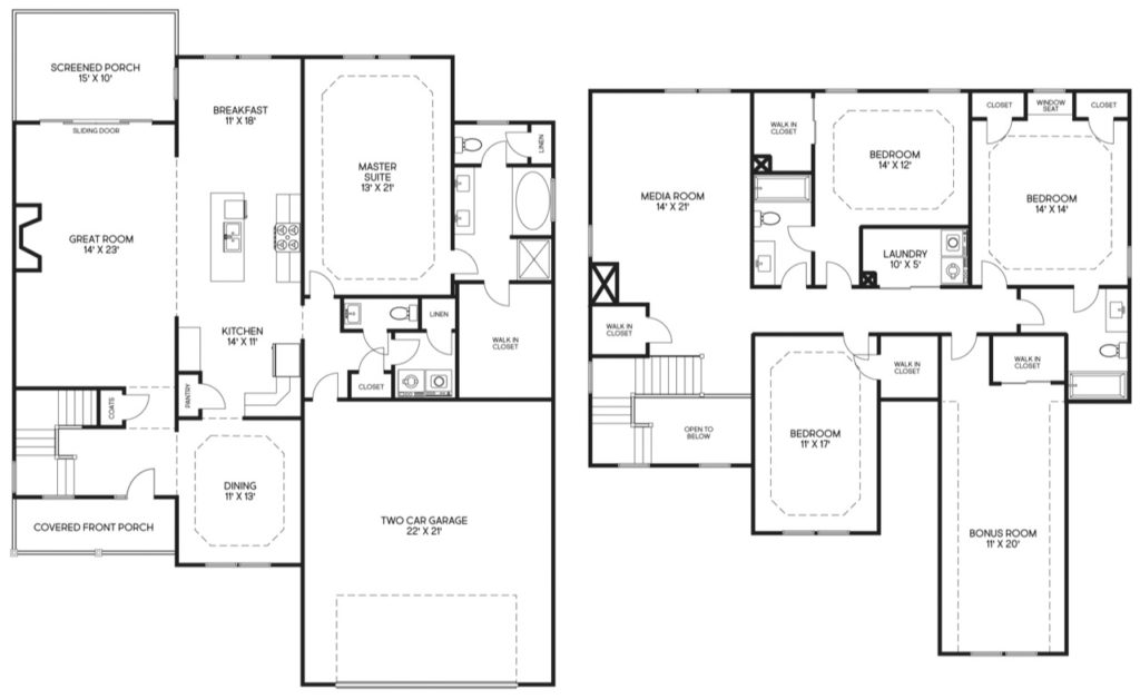
The Waterford offers 3,259 heated square feet with 4 bedrooms, 3.5 baths, and a two-car garage, designed for families who love both open gathering areas and private retreats.

On the first floor, the great room with fireplace flows seamlessly into the kitchen and breakfast area, opening onto a screened porch for easy indoor-outdoor living. A formal dining room at the front of the home adds a touch of elegance, while the spacious master suite includes a large walk-in closet and spa-inspired bath for a true retreat. The two-car garage and additional storage provide everyday convenience.

Upstairs, four bedrooms with generous closets share the level with a media room and a bonus room, creating multiple options for entertaining, study, or play. A dedicated laundry room adds practicality, while thoughtful design details ensure everyone has space to spread out.

With its combination of open living areas, multiple porches, and flexible bonus spaces, the Waterford balances comfort and function in a timeless coastal-inspired design.

Build on Your Lot:

Building this home plan includes the following “Classic” standard home plan features (linked pdf). This is also linked above in the Standard Features button.

Floor Plan

Schedule a Home Tour

Want to see this home in person? Send us your information below along with the date that you would like to visit, and we will be in contact to schedule a time with you.

"*" indicates required fields

This field is for validation purposes and should be left unchanged.
MM slash DD slash YYYY
This site is protected by reCAPTCHA and the Google Privacy Policy and Terms of Service apply.